Nat Tiranat Kamklai

I’m an architect and passionate multidisciplinary designer, driven by creativity and innovation across diverse fields of design.
Education
Silpakorn University, Bangkok, Thailand
Bachelor of Architecture — 1996–2001
University of Liverpool, UK
Master of Arts in Architecture — 2009–2010 Graduated with Distinction
Design Dissertation: “Co-Housing”
Università Politecnica della Marche, Ancona, Italy
Architectural Workshop Certificate — 2019
“Living with the Earthquake” Workshop, Servigliano, Province of Fermo
Professional Experience
Architect – KJM Architekten Bangkok Thailand — 2011-2023
Designer – Royal Thai Embassy London — 2023-Now
Freelance Architectural Designer London UK — 2023-Now
Architectural Portfolio
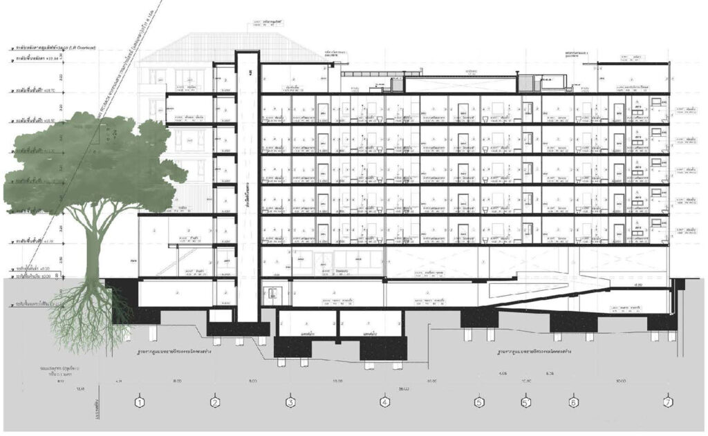
S43 Serviced Apartment
Location: Bangkok City Centre
Status : Construction Completed

This residential building project is located in a dense urban area where land value is exceptionally high. The design prioritizes the optimal use of every square meter while also aiming to create meaningful architectural value. A large, beautiful rain tree (Samanea saman) stands on the site, and rather than removing it, the design carefully preserves the tree by shaping the building to accommodate its presence. The common areas are strategically positioned to offer clear views of the tree, enhancing the connection between architecture and nature.


PHRANANG LANTA BEACH RESORT
Location: lANTA ISLAND, KRABI, THAILAND
Status : Construction Completed
Located on a tropical beach in Lanta Island, Krabi, the site is surrounded by coconut palms and mature trees. The master plan was thoughtfully designed to embrace and preserve the existing large trees, with the buildings positioned to gently wrap around them. The resort consists of two-story structures featuring a rooftop bar and balconies offering panoramic sea views.
To maintain harmony with the natural shoreline, building heights were carefully limited to align with the horizontal line of the beach, allowing the architecture to blend humbly into the surrounding greenery. The building forms incorporate soft curves that echo the organic lines of nature, enhancing the sense of place. Thatched roofs made from locally sourced natural materials were used, with low, rounded profiles that express a respectful dialogue with the landscape and a deep sensitivity to the tropical environment.



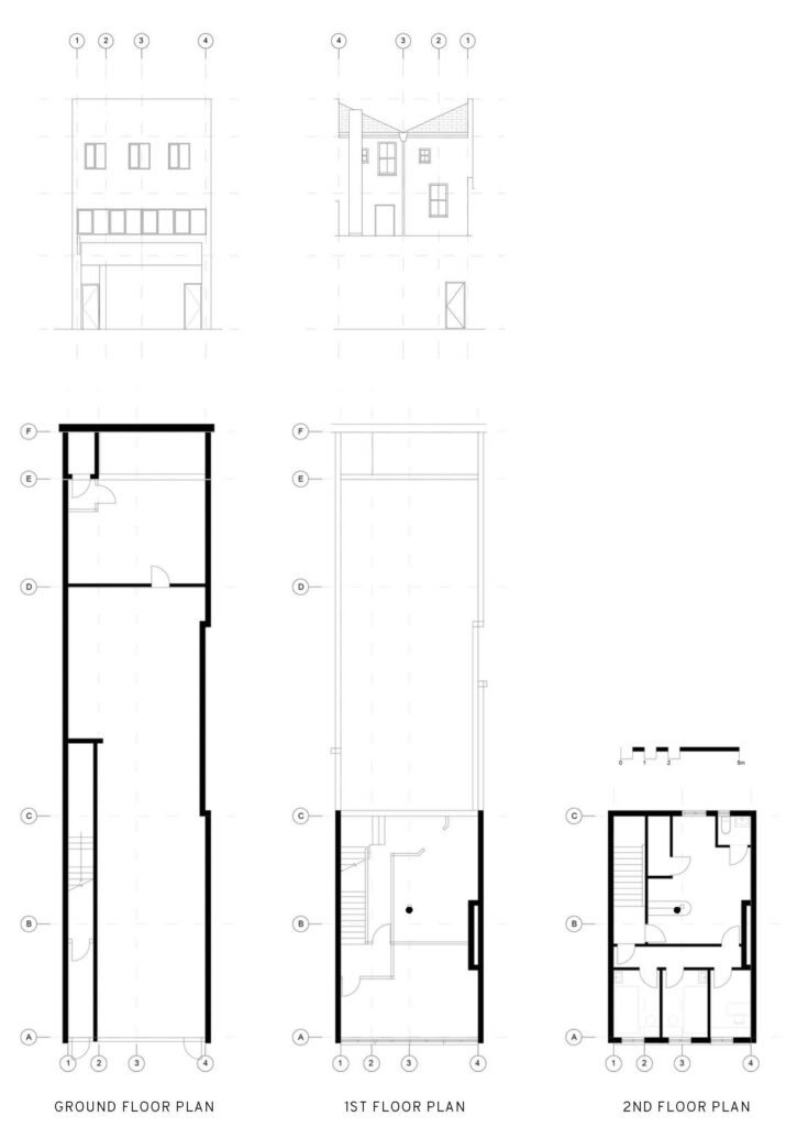
Expanded Family House Renovation
Location: Bangkok, THAILAND
Status : Construction Completed
This project involved the renovation of a house for an extended family, presenting a unique design challenge: balancing the diverse needs of multiple generations under one roof. The design carefully integrates private living spaces tailored to each family member’s age and lifestyle, while also creating generous shared common areas that foster connection and togetherness. The result is a harmonious blend of privacy and community, thoughtfully crafted to support multi-generational living.


London Craft Week 2025
“Chud Thai Through the Ages:Weaving History, Craft and Identity”
Location: Royal Thai Embassy London
Status : Construction Completed
As part of London Craft Week 2025, this exhibition showcased the traditional Thai dresses (Chud Thai) worn by Her Royal Highness Princess Sirivannavari Nariratana Rajakanya. The event was held at the Royal Thai Embassy in London in May 2025.
The primary design objective was to transform a formal meeting room into a space that resembled a textile museum, highlighting the elegance and cultural significance of Thai royal attire. The design embraced simplicity, allowing the garments themselves to take center stage.
Curved lines were introduced throughout the space to evoke the flowing movement of Thai textiles.


The circulation path was carefully planned to allow viewers to appreciate the garments from multiple angles, enhancing their spatial and visual impact. Lighting played a crucial role: ambient lighting was dimmed to create a calm atmosphere, while accent lighting was strategically placed to illuminate key features. When the light touched elements like metallic embroidery and gold-threaded silk, the intricate details came to life with radiant brilliance.
Wall colors were intentionally subdued to remain humble and unobtrusive, ensuring that the garments remained the focal point of the exhibition.

The images below show comparison of 3D rendering and photos of actual exhibition.


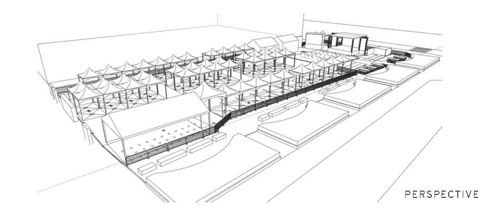
Thailand Showcase 2025
Location: Lewis Cubitt Square , King’s Cross, London
Status : Completed

This project involved the master planning of Thailand Showcase 2025, including the layout of retail booths, stage areas, and service zones. I was also responsible for coordinating with event organizers, construction teams, and individual vendors to ensure the accurate placement of each retail booth within the overall site plan.
A key design feature was the creation of a generous open space in front of the main stage to enhance the audience’s viewing experience. This area was covered with artificial grass and furnished with floor seating and bean bags, creating a relaxed and informal zone. Behind this, a row of benches was installed, followed by a standing area at the back.
This tiered zoning strategy ensured unobstructed views of the stage for all visitors, fostering a sense of inclusivity and engagement. The open space not only highlighted the prominence of the stage but also avoided visual clutter, resulting in a welcoming and spacious environment.


Cosmetic DOCTOR Clinic (Renovation)
Location: King Street, Hammersmith, London
Status : Construction Completed
This project involved the renovation and adaptive reuse of an existing space to convert it into a functional medical clinic. The scope of work included preparing and submitting permission drawings to the Hammersmith and Fulham council for an approval.
The design reconfigured the interior layout to accommodate new functional requirements, including a reception area, a patient waiting zone outside the examination rooms, dedicated consultation rooms, and medical examination rooms.
In addition to design responsibilities, the project included full construction supervision. The renovation was completed successfully within a tight timeline of three weeks.


The existing building has limitations, a structural column positioned in the center of the space. Rather than viewing it as an obstruction, the design integrated the column into the layout by placing the reception counter at that location. The column was positioned at the end of the counter, making it appear as an intentional design element.

London Chinatown Thai Street Food cAFE
Location: lISLE sTREET, cHINATOWN, lONDON
Status : Partually Completed

This project involved the design of a street food booth within an existing supermarket. The primary objective was to transform a standard retail area into a visually distinct space that clearly reflects the brand’s identity, while also ensuring rapid construction and installation. The design emphasized brand visibility, customer engagement, and efficient use of a compact footprint—all achieved within a fast-track timeline.
In addition to the interior booth design, permission drawings were prepared and submitted for the modification of the shopfront to align with the new brand image and improve the store’s street-level presence.

Architectural Drawing and
Architectural Visualisation


Sketch and Watercolour

Skills
Hard Skills
Architectural Design
Working Drawing
Revit
Rhino
AutoCAD
SketchUp
Lumion
Enscape
Hand Sketch
Adobe Creative Suite
Procreate
Figma
HTML CSS
Roblox Studio
Soft Skills
Working Effectively in Groups
Critical Thinking
Problem-solving
Time Management
Responsibility
Positive Attitude
Language
English
Thai (Native)
Hobbies
Art
Music